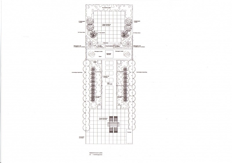
Bijvanck te Blaricum

Dit is een tuin in de Bijvanck van Blaricum, men wilde graag 2 terrassen, iets met water, privacy, een adequate oplossing voor de 80cm hogere ligging van het laatste stuk van de tuin en absuluut geen gras.
Zichtlijn
Door toepassing van een zichtlijn, versterkt door een pergola, hebben wij diepte aan de tuin gegeven richting 2e terras. Dit is te bereiken door over een tegel te lopen, die als het ware in de vijver ligt. en via een trap.
Lichte tegels
Door gebruikmaking van een lichte kleur tegel lijkt de tuin, in combinatie met de zichtlijn, groter.
Ook aan verlichting is gedacht, zodat de tuin met name in de winter 's avonds geen donker gat is.